Local island developer Lisa McCorkle Guerrero, officially broke ground to one of the island’s most luxurious and prestigious beachfront developments to date. She, along with her partners and associates, took to the shovels and officially commenced construction of the Diamante Beachfront Suites on Thursday, March 27, 2014.
Diamante Beachfront Suites is a luxury beachfront development that boasts a classic and contemporary feel in building and design. It offers prospective homeowners an opportunity to purchase a full strata condominium in perfect proximity to all the town of San Pedro, Ambergris Caye, Belize has to offer.

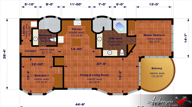
The development boasts one of the most coveted locations on the island, located directly on the beachfront in downtown San Pedro. The development consists of five stand-alone buildings that are comprised of two and three bedroom condos. All the units have private balconies, high-end appliances, 10-foot ceilings and granite countertops. Each unit will feature floor to ceiling double insulated windows that offer great views of the Caribbean Sea which lies directly ahead.
With a long, storied family history of pioneers, entrepreneurs and hoteliers on the island of Ambergris Caye, Lisa McCorkle Guerrero offers a trustworthiness and reliability which is sure to enhance the development and charm of the island.
Visit www.diamantebelize.com for more information


























